清水湾历史建筑移位保护与再生设计
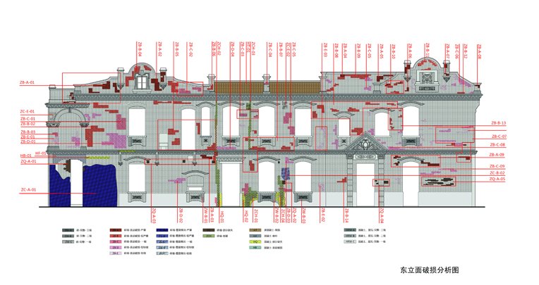
清水湾历史建筑位于上海市普陀区,苏州河畔。建筑高二层,回字形平面,最鲜明的特色为其中式格局与西式立面的结合——建筑的主体是五开间、有两厢的江南院落式建筑,内部结构完全是中式木构梁架;外立面则是西式风格的清水砖外墙,以青砖为主,上有西式的券窗、山花等,前部还结合了一个西式7开间的2层券廊。
据考证,这幢历史建筑在百年间经历了住宅、工厂、学校等多种使用功能的变化,在保护前,其周边的环境已更新为工厂。由于并未被列入文保或上海市优秀历史建筑,清水湾历史建筑面临着被拆除的命运。2007年,本设计在对建筑遗存的详细测绘基础上,提出对其进行保护的建议。经各方协商讨论,最终决定进行整体移位保护并与社区功能整合。
移位目标地和原位直线距离约80米,需旋转约35度。由于防汛墙较高,建筑还需要抬高约2米。移位完成后该建筑东立面将直接滨水。对于这栋历史建筑的保护与再生来说,“移位”成为修缮工作的一项前提条件。在设计中,对建筑遗存的立面风貌和平面形制,历经百年带来的沧桑留痕,进行了最大程度的保存;充分考虑了新增部分如新结构、新空间和遗存之间的关系,包括新旧结构的关系和适应性、空间上的有机结合和适用性、形态上的文脉与可识别性;结合移位,还进行了一些历史建筑结构加固设计的新探索,如隔震垫的设置等。




















